新潟市 M様邸 全面リフォーム
| お客様のご要望 | 奥様と住み替えを検討されていましたが、昨年奥様が突然ご逝去されて断念。それでも残りの人生を同じ家で過ごしたくはないと考え、終の棲家としてのリフォームをご決断されました。 趣味のプラモデルの収納不足や、水廻り・熱源機の劣化を解消し、お孫様を連れたご長男家族を迎えられる家にしたいとのご希望でした。 |
|---|
|
施工事例データ
| 住所 | 新潟県新潟市東区 |
|---|---|
| 施工箇所 | LDK/洗面/トイレ/書斎 |
| 施工内容 | バリアフリーリフォーム |
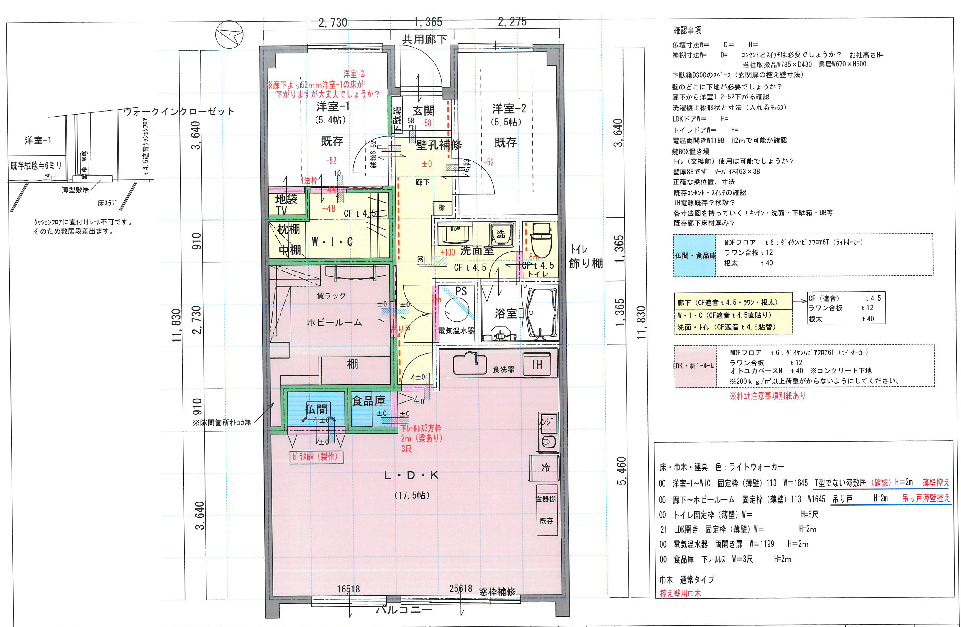
| ご提案内容 | たくさんのプラモデルのために、趣味と収納を兼ねた専用の書斎をご提案。水廻りを一新し、UBは一回り大きく、キッチンは機器オプションで収納力2倍にしました。 熱源と共に給水・温水配管を全更新し、階下とのトラブル防止のため、最高級の防音素材をご用意しました。仏間も移し、奥様を陽の当たる明るい場所へお連れします。 |
|---|
M様邸既存図面
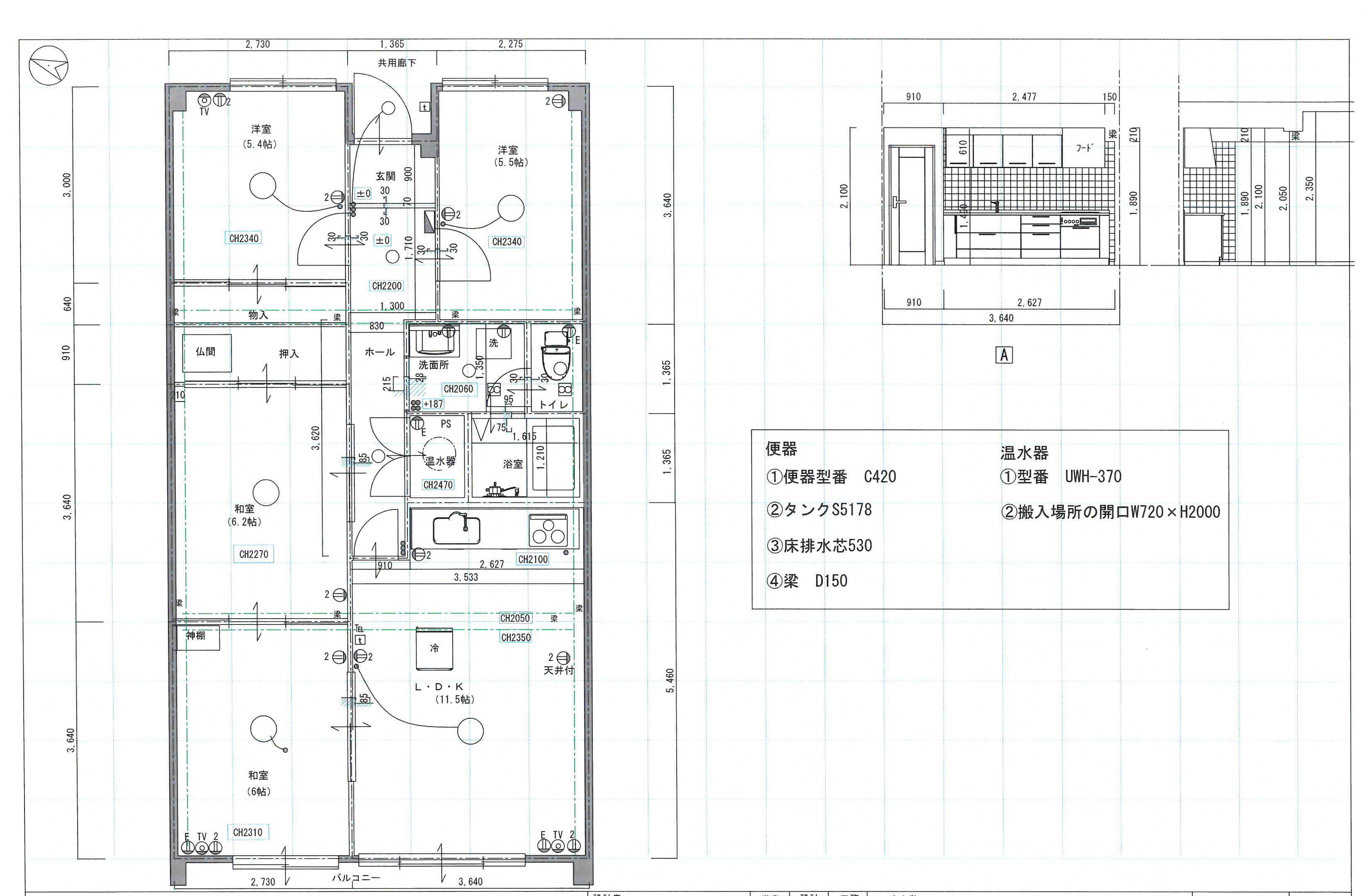
M様邸改装図面
リフォームされたお客様の声
リフォパーク新潟 代表 今井直人様
この度、御社から築32年のマンションの我が家を全面的にリフォームして頂きこ事から厚く御礼申し上げます。
この度のリフォームは5年前に突然あの世へ旅立ってしまった亡き妻との約束という側面もありますし、私がこの先老後の人生を何年過ごせるか…?という考えの交差する中で私の考えている低予算で果たしてできるのかという疑問の中、やるならば今年と決め、いざ色々と調べてみると予算的にはかなり厳しい状況。
親戚の知っている大工さんを教えて頂きその大工さんに要望をお話したら、その予算では到底引き受けられないと返事を頂き、断念せざるを得ないのかと悩んでいる中で昨年末の御社のチラシのことを思い出し、ひょっとしてリフォパークさんならある程度の事が出来るのではないかと思い、早速来店させて頂き稲森様にご相談させて頂いたところ、「当初の予算である程度ご満足いただけるリフォームが可能」とのお返事を頂き、見積もり契約をして契約に至った次第です。
実際のリフォームに当たっては、稲盛様が私の趣味や家族構成とうとう詳しく聞いて、具体的なプランを立ててくださいました。
それでも十分満足できるものでしたが、新保様がさらに素晴らしいホビールームやウォークインクローゼット、部屋の色合い等の提案をして頂き、いよいよ着工となりました。 着工後は工事の音のことなどで当初から予想はしていましたが階下の住民から苦情が稲森様にありましたが稲森様がきちんと対応して下さいました。その後も温水器からの水漏れがあり、稲盛様には本当にご苦労をおかけしてしまいました。
また、定期的に川瀬様や佐藤様から「気づいた点やご質問等は御座いませんか」と御連絡を頂き、細かな心遣いに感謝申し上げます。
また、マンションの役員会出席のついでに時々工事の様子を見させて頂きましたが、私はすべて安心して皆様スタッフにお任せすることが出来ました。
もちろんお金を掛ければこれ以上に素晴らしい工事は出来たのかもしれませんが、私にとっては本当に充分に満足できるリフォームとなりました。
また、お金を掛けたところでこのように素晴らしいプロ集団の皆様にご縁があったとは思えません。
大工の皆様方、電気を担当して頂いた皆様型、そして稲森様はじめスタッフの皆様のお力が結集して、私の夢が実現できたことに心から感謝申し上げます。
本当はお一人お一人に直接、感謝申し上げたいのですが、社長様からお伝え頂ければ幸いです。
きっと、亡き妻も天国から眺めてリフォパークの皆様方に感謝している事と思います。
本当にこの度はありがとうございました。
絆倶楽部にも入会させて頂きましたので、今後とも末永くお世話になりますが、どうかよろしくお願い申し上げます。
最後に、社長様、スタッフの皆様方、工事に携わっていただいた御社のすべての皆様方のご健勝とますますのご発展をお祈り申し上げます。








